Aller au contenu

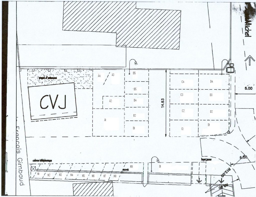
Places de parking

  • par

Voici les emplacements disponibles sur les parkings, attribués aux bateaux des membres à jour de leur cotisation.